Reviews
€77.675
Στρατηγού Μπραντούνα, Θεσσαλονίκη, Ελλάδα
Θεσσαλονίκη
Κλείσε Ραντεβού
Κλεισε ραντεβού με έναν εκπρόσωπο μας, για να μιλήσετε σχετικά με τις υπηρεσίες που επιλέξατε.
Σύνοψη διαμερίσματος
Επιλέγουμε για εσάς ανάμεσα από χιλιάδες διαμερίσματα εκτός αγοράς,
τα οποία επισκεπτόμαστε, ελέγχουμε, εγκρίνουμε και στην συνέχεια σας παρουσιάζουμε αποκλειστικά
τα οποία επισκεπτόμαστε, ελέγχουμε, εγκρίνουμε και στην συνέχεια σας παρουσιάζουμε αποκλειστικά
- Διαμέρισμα
- 35 ㎡
- Όροφος: 7
- Έτος κατασκευής: 1978
Σύνοψη Επένδυσης €77.675
- €68.000 αγορά ακινήτου
- €9.675 ανακαίνιση
- €5.460 ετήσιο εισόδημα ενοικίου
- 6.2% απόδοση
Ανάληση
Αξία
- €68.000 (€1.942 / ㎡) τιμή αγοράς ακινήτου
- €81.165 (€2.319 / ㎡) αξία ακινήτου βάσει 39 παρόμοιων διαμερισμάτων
- €117.740 (€3.364 / ㎡) αξία ακινήτου ως ανακαινισμένο βάσει 128 παρόμοιων διαμερισμάτων
Ενοικίαση
- €455/μήνα (€13 / ㎡) ενοίκιο διαμερίσματος, ως ανακαινισμένο βάσει 97 παρόμοιων διαμερισμάτων
Απόδοση
- Το διαμέρισμα θα αποδίδει: 6.2%
Έξοδα αγοραπωλησίας
- €4.080 προυπολογισμός φόρου μεταβίβασης ακινήτου (Φ.Μ.Α.) και συμβολαιογραφικών εξόδων
Ακίνητο
Στοιχεία διαμερίσματος στην παρούσα κατάσταση:
- Διαμέρισμα
- Υπνοδωμάτια: 1
- Μπάνια: 1
- Όροφος: 7
- Θέα: Μοναδική Θέα
- Μπαλκόνι: Ναι
- Ασανσέρ: Ναι
- Αποθήκη: Όχι
- Γκαράζ: Όχι
- Θέρμανση: Αυτόνομη, Ρεύμα
Ανακαίνιση
Σύνοψη:
-
Η επένδυση σε ανακαίνιση που απαιτείται για να έχει το ακίνητο τη μέγιστη απόδοση και το χαμηλότερο ρίσκο προυπολογίζουμε πως θα κοστίσει: €9.675
Η Protio σας βοηθάει να μετατρέψετε το διαμέρισμα σας σε μια επένδυση υψηλής απόδοσης και διαχειρίζεται για εσάς όλη την ανακαίνιση μέσω εγκεκριμένων εργολάβων
Η προτεινόμενη ανακαίνιση περιλαμβάνει:
- Υδραυλικά
- Μπάνια
- Κουζίνα
- Δάπεδα
- Βάψιμο
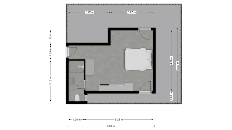
Κάτοψη μετά την ανακαίνιση:

Γειτονία
Η γύρω περιοχή:
© 2019-2025 Protio ❤️. All rights reserved.