Reviews
€339.145
Mesogeion, Marousi, Griechenland
Μαρούσι - Παράδεισος
Κλείσε Ραντεβού
Κλεισε ραντεβού με έναν εκπρόσωπο μας, για να μιλήσετε σχετικά με τις υπηρεσίες που επιλέξατε.
Σύνοψη διαμερίσματος
Επιλέγουμε για εσάς ανάμεσα από χιλιάδες διαμερίσματα εκτός αγοράς,
τα οποία επισκεπτόμαστε, ελέγχουμε, εγκρίνουμε και στην συνέχεια σας παρουσιάζουμε αποκλειστικά
τα οποία επισκεπτόμαστε, ελέγχουμε, εγκρίνουμε και στην συνέχεια σας παρουσιάζουμε αποκλειστικά
- Διαμέρισμα
- 124 ㎡
- Όροφος: 4
- Έτος κατασκευής: 1987
Σύνοψη Επένδυσης €339.145
- €295.000 αγορά ακινήτου
- €44.145 ανακαίνιση
- €16.368 ετήσιο εισόδημα ενοικίου
- 4.0% απόδοση
Ανάληση
Αξία
- €295.000 (€2.379 / ㎡) τιμή αγοράς ακινήτου
- €353.028 (€2.847 / ㎡) αξία ακινήτου βάσει 39 παρόμοιων διαμερισμάτων
- €343.852 (€2.773 / ㎡) αξία ακινήτου ως ανακαινισμένο βάσει 14 παρόμοιων διαμερισμάτων
Ενοικίαση
- €1.364/μήνα (€11 / ㎡) ενοίκιο διαμερίσματος, ως ανακαινισμένο βάσει 12 παρόμοιων διαμερισμάτων
Απόδοση
- Το διαμέρισμα θα αποδίδει: 4.0%
Έξοδα αγοραπωλησίας
- €17.700 προυπολογισμός φόρου μεταβίβασης ακινήτου (Φ.Μ.Α.) και συμβολαιογραφικών εξόδων
Ακίνητο
Στοιχεία διαμερίσματος στην παρούσα κατάσταση:
- Διαμέρισμα
- Υπνοδωμάτια: 3
- Μπάνια: 1
- Όροφος: 4
- Θέα: Πολύ Καλή Θέα
- Μπαλκόνι: Ναι
- Ασανσέρ: Ναι
- Αποθήκη: Ναι
- Γκαράζ: Όχι
- Θέρμανση: Κεντρική, Πετρέλαιο
Ανακαίνιση
Σύνοψη:
-
Η επένδυση σε ανακαίνιση που απαιτείται για να έχει το ακίνητο τη μέγιστη απόδοση και το χαμηλότερο ρίσκο προυπολογίζουμε πως θα κοστίσει: €44.145
Η Protio σας βοηθάει να μετατρέψετε το διαμέρισμα σας σε μια επένδυση υψηλής απόδοσης και διαχειρίζεται για εσάς όλη την ανακαίνιση μέσω εγκεκριμένων εργολάβων
Η προτεινόμενη ανακαίνιση περιλαμβάνει:
- Ηλεκτρολογικά
- Υδραυλικά
- Κουφώματα
- Μπάνια
- Κουζίνα
- Δάπεδα
- Βάψιμο
- Θέρμανση
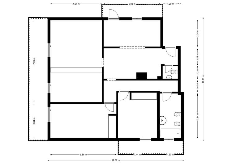
Κάτοψη πριν την ανακαίνιση:

Κάτοψη μετά την ανακαίνιση:

Γειτονία
Η γύρω περιοχή:
© 2019-2025 Protio ❤️. All rights reserved.